Urban Oasis Residences

San Antonio, TX 78204, USA

oscar_eade

Project Overview

**THIS HOME FEATURES OVER $59,000 IN UPGRADES!** The Driskill is an exciting new 1-story in our Encore Collection. This south facing home offers 4 bedrooms, 3 full baths, study, and a 2-car garage with added storage. The open kitchen features our trademark immensely sized kitchen island upgrade with trash can pull- out cabinet and drawer banks, Silestone quartz counters, 42" white shaker style cabinetry, and stainless-steel appliances with 5-burner cooktop. This home is graced with luxury vinyl plank floors for durability and elegance. The homesite is 8,218 sq ft and offers an oversized covered back porch with room for a pool, dog run, and garden!

 

Hays County’s newest master-planned community offering new homes for sale in Mountain City located on the west side. Framed by an interconnected system of green belts and parks located along Mustang Branch which flows into Onion Creek, the community boasts 422-acres along FM 150. The master plan connects the

Share

Features

Security
24/7 CCTV surveillance
Maintenance and Management
On-site property management office
Storage
Built-in storage solutions
Accessibility
Elevators serving all floors
Project Type
Townhome
Year Build
2024
Parking
Underground parking garage
Interior Design
Modern and spacious layouts

Location

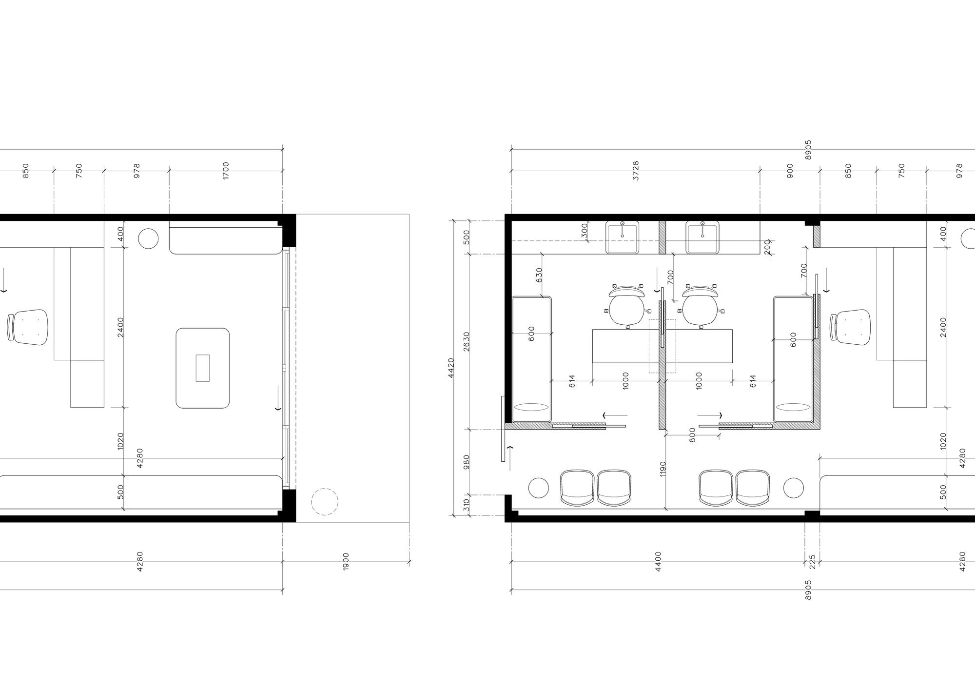
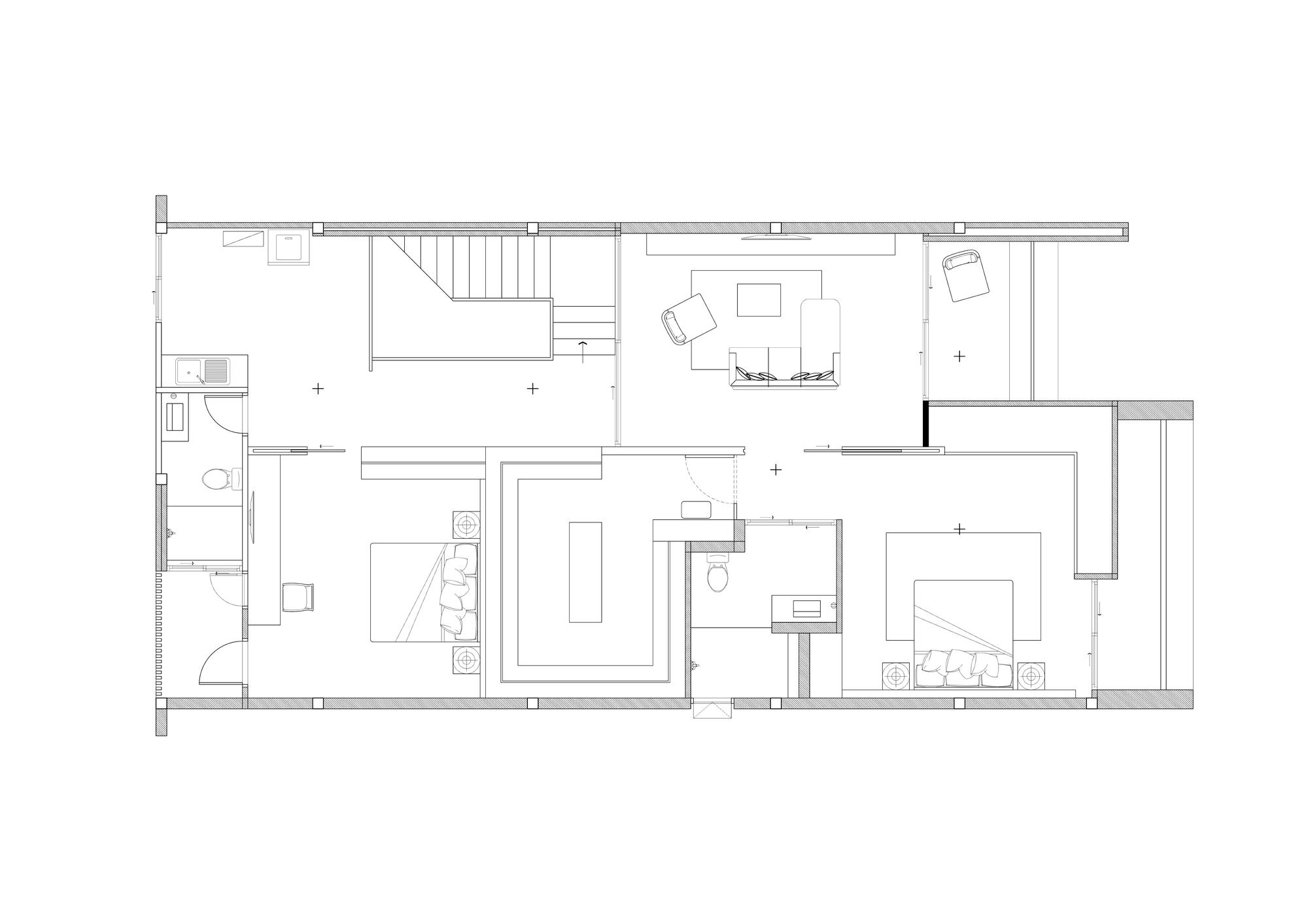
Floor Planning

Project Types

  • Area 954 - 1257 Sqft
  • Price AED2500 - AED2800
  • Unit 8
  • Area 1200 - 2800 Sqft
  • Price AED1999 - AED5200
  • Unit 20